固態去耦合器應用
發布:nmrhgmgv 瀏覽:1631次
固態去耦合器作為直流隔離和交流耦合裝置,用于防止陰極保護電流達到預定的電壓,同時還能傳導感應的交流電,當電壓力超過閾值電壓時,立即切換到短路模式,以提供過壓保護,當過壓保護過去之后,又自動切換回到直流隔離模式。固態去耦合器的應用,在國外減緩交流干擾工程中應用普遍,同時近年來在國內大型長輸管道工程也得到了了成功的應用,固態去耦合器具有較好的抗雷電與故障電流沖擊性能,常用語管道,絕緣裝置等故障和電流雷擊干擾的保護。
排流點的位置很大程度上決定了排流的效果,實踐中對于固態去耦合器的作用距離的發現,單一的固態去耦合器雖然能降低排流點附近的交流干擾電壓,但卻能使得排流點遠處附近的交流干擾電壓升高,部分管段甚至升高較大。
在管道的交流排流中,應綜合現場的干擾情況中,有原則地采用固態去耦合器才能到達交流減緩的要求,建議排流實施條件時分布實際與施工,輔以同步測試的方法,根據排流后確定下一個排流點的施加位置。
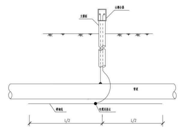
固態去耦合器安裝圖橫面

- 上一篇:犧牲陽極有哪些優勢
- 下一篇:天然氣管道怎么做陰極保護

鋅接地電池
陰極保護專用電纜
長效硫酸銅參比電極
鋁合金犧牲陽極(鋁陽極)